selection
prizes
list
projects
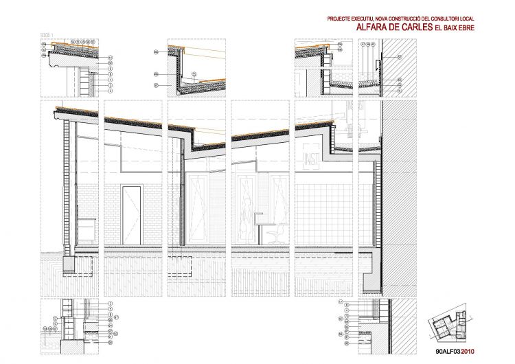
CONSULTORI LOCAL A ALFARA DE CARLES
90-ALF