selection
prizes
list
projects
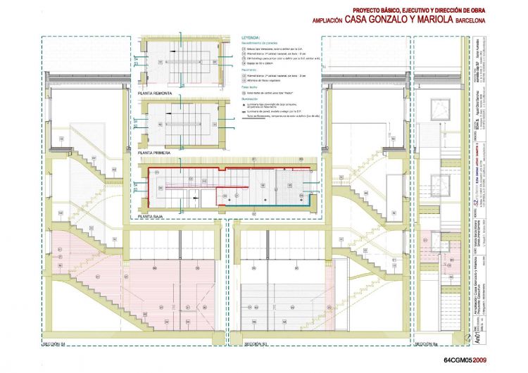
CASA PER A GONZALO I MARIOLA
64-CGM