selection
prizes
list
projects
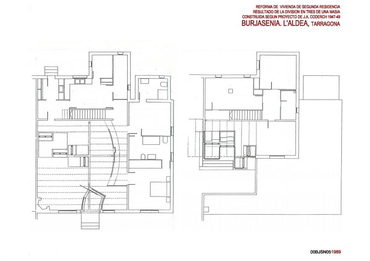
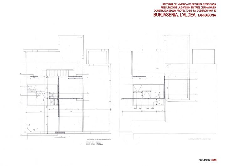
REFORMA D’UNA VIVENDA A BURJASENIA