selection
prizes
list
projects
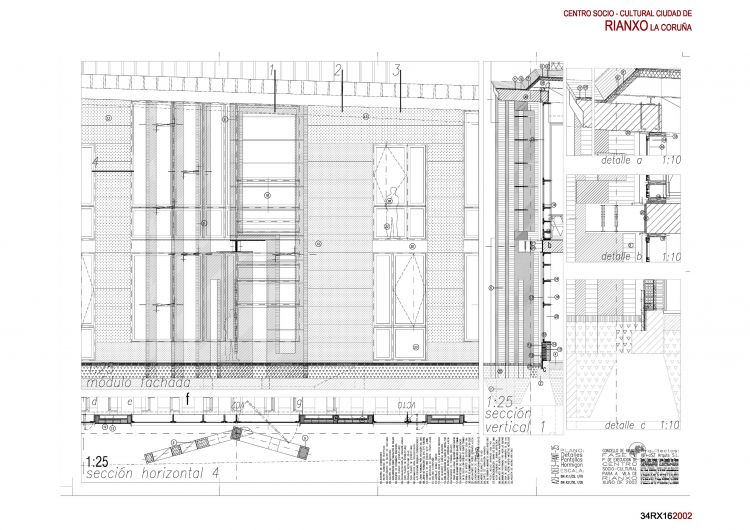
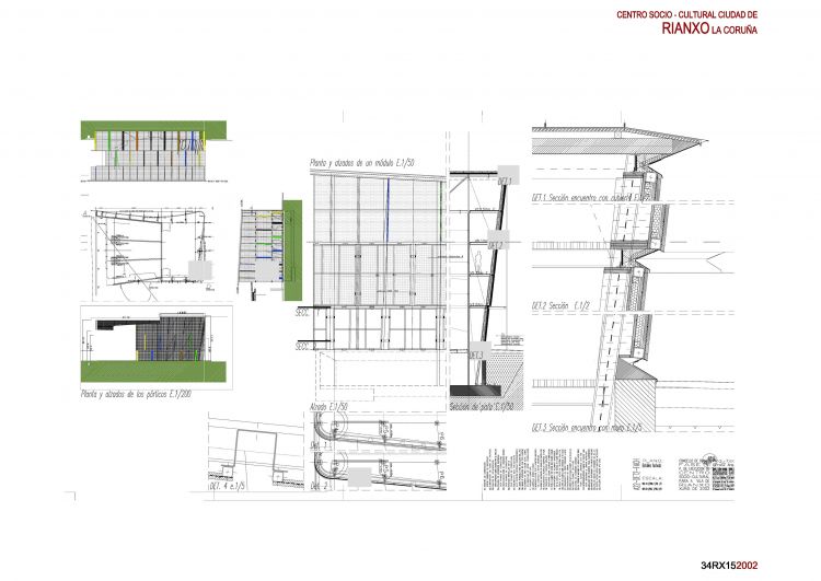
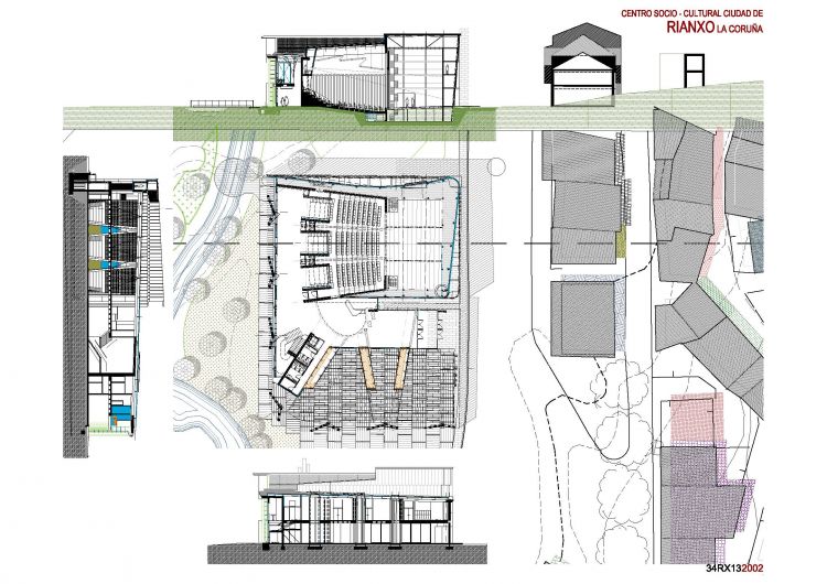
CENTRE SOCIOCULTURAL, BIBLIOTECA I AUDITORI A RIANXO
34-RX