selection
prizes
list
projects
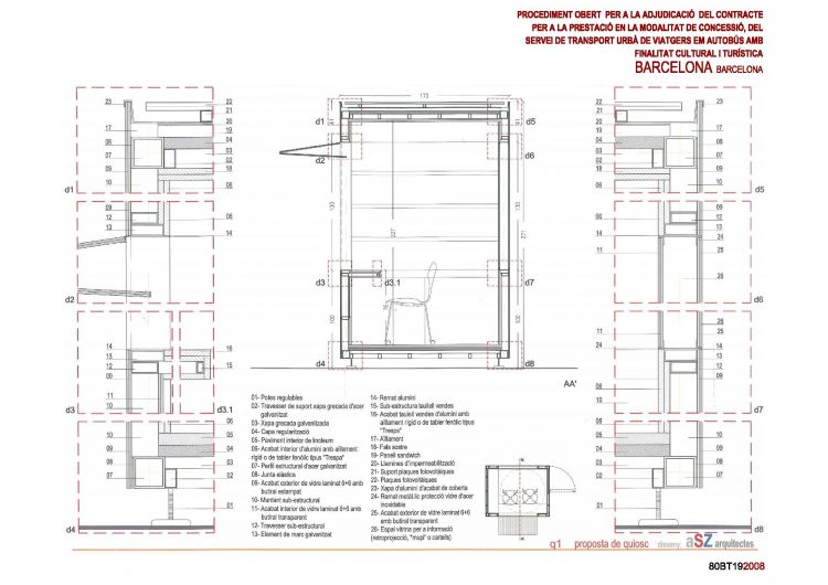
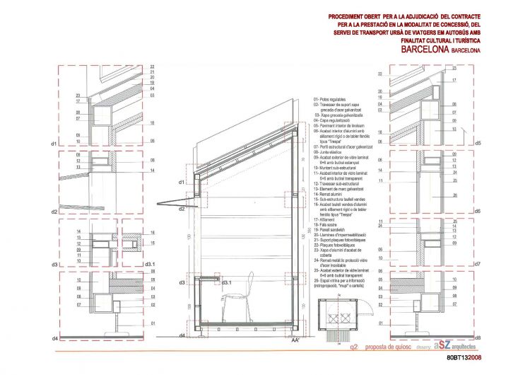
BARCELONA CITY TOUR
80-BT01