projects
4 of 6
VIVIENDA 26 CARRER NOU
45-CN
Consolidació d’habitatge unifamiliar entre mitgeres al Carrer Nou, 26 de Cervia de les Garrigues
Promoció privada
- LLEIDA, Spain
- Familia Gasol-Soldevila
- 72 m²
- 10800
- 04-2002
ÀTIC A PG. de GRÀCIA
44-ES
Projecte de consolidació d’àtic a Passeig de Gràcia, 104
- BARCELONA, Spain
- Sr. Carles Esteva
- 02-2001
LOCAL CHERPI
43-CH
Projecte d’execució i obra per a nova terrassa bar al Carrer Moragas, 21
- BARCELONA, Spain
- Sr. Josep Espert
- 03-2001
CONJUNT D’HABITATGES, LOCALS COMERCIALS I APARCAMENTS A VILADECANS
42-VD
Projecte d’execució per a 57 habitatges amb aparcament i locals comercials al secotr “Sales Residencial “ Unitat de Projecte C de Viladecans
Autors: MAP architects + aSZ arquitectes
- VILADECANS - BARCELONA, Spain
- IMPSOL
- 03-2002
RETOLACIÓ FAÇANA INDUSTRIAL TECNO-PAPELES PER A L’ALIMENTACIÓ
41-TC
- SANT BOI DE LLOBREGAT - BARCELONA, Spain
- Tecnobol, S.L
- 05-2001
PLA DIRECTOR DE LA CIUTADELLA
40-CD
Concurs relatiu al contracte nº 01001416 que té per objecte la redacció del Pla Director de la Ciutadella, (expedient nº79/2001)
Autors: aSZ arquitectes + TAU arquitectes- BARCELONA, Spain
- Ajuntament de Barcelona
- 05-2001
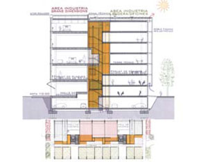
EDIFICI CONTENIDOR D’ACTIVITATS INDUSTRIALS PROVISIONALS AL 22@, BARCELONA
39-22@
- C/Lope de Vega. 22@, BARCELON A
- AJUNTAMENT DE BARCELONA
- 05-2007
HABITATGES I URBANITZACIÓ AL CARRER LLULL. FÒRUM 2004
38-FO
Illa 2 (C/Llull/Raimon de Penyafort/Taulat-FORUM). Concurs i avantprojecte de Bloc d’habitatges PB+3 i Urbanització
- BARCELONA, Spain
- Barcelona Regional / Ajuntament de Barcelona / Ajuntament de Sant Adrià del Besos / Consorci del Besós
- 01-2002
HABITATGES ARGENTONA
36-ARG
Projecte d’execució de vivenda unifamiliar entre mitgres. Urbanització Can Barrau, Parcela 10, Argentona
- ARGENTONA - BARCELONA, Spain
- Marta Subirana, Marcos Cánovas
- 09-2002
ALELLA-HABITATGES ASSISTITS
35-VAL
PLa parcial. Avantprojecte equipament soci-assistencial. Residència 3ª edat. Centre de día.
- ALELLA
- Paprensa
- 12-2001
CENTRE SOCIOCULTURAL, BIBLIOTECA I AUDITORI A RIANXO
34-RX
Projecte i direcció d’obra d’un centre sociocultural, biblioteca i auditoria a Rianxo
- RIANXO – A CORUÑA, Spain
- Concello de Rianxo
- 2186 m²
- 06-2002
CENTRE SOCIOCULTURAL ‘A TRISCA’
33-TR
Projecte bàsic, d’execució i direcció d’obra del Centre Sociocultural A TRISCA
- SANTIAGO DE COMPOSTELA, Spain
- Concello de Santiago
- 2500000
- 01-1999
TRAMMET
32-TRAMMET
Concurs restringit d’adjudicació de la redacció del projecte, la construcció i l’explotació d’un sistema de tramvia/metro lleuger en el corredor Diagonal-Baix Llobregat a l’àrea de Barcelona
http://www.youtube.com/watch?v=n5hrPFUOq2U
- BARCELONA, Spain
- Grup TRAMMET
- 18498850 m²
- 01-2000
ESTACIÓN DE RENFE EN SANTIAGO DE COMPOSTELA
31-SA
Pla especial de ordenació d’accessos, infraestructures, i nova edificació a l’estació
- Estació de Renfe. SANTIAGO de COMPOSTELA
- CONCELLO DE SANTIAGO DE COMPOSTELA
- 04-2000
AVANTPROJECTE DELS TREBALLS COMPLEMENTARIS AL DESENVOLUPAMENT DE LA RONDA DE LA HISPANITAT DE SARAGOSSA
29-ZA
Concurs, procediment obert, per a la redacció de l’avantprojecte d’obres complementàries a la Ronda de la Hispanidad , entre Isabel la Católica i el Camino de Cuarte
-Primer Premi i encàrrec-
Autors: Elena Cánovas + Isabela de Rentería
- SARAGOSSA, Spain
- Ajuntament de Saragossa
- 01-1999
CAP FLORÈNCIA. BARRI LLATÃ, SANTA COLOMA DE GRAMENET
28-CAP
Projecte executiut per a l’adequació d’una estructura i coberta reakitzades en Centre d’Assistència Primària “Florència” i Casal de Barri a Santa Coloma de Gramanet.
En col·laboració amb: MAP Arquitectes, S.L.
- STA. COLOMA DE GRAMENET - BARCELONA, Spain
- Servei Català de la Salut. Unitat de Projectes. Divisió de Recursos FÃsics, Béns i Serveis
- 1100 m²
- 991125
- 01-1999
DESENVOLUPAMENT DELS ASPECTES TÈCNICS INCLOSOS EN EL PLA ESTRATÈGIC DE LA USC
27-XR
Desenvolupament dels aspectes tècnics inclosos en el pla estratègic de la USC. Auditoria de l’estat actual de les edificacions de l’antic hospital Xeral de Santiago
- Santiago de Compostela
- UNIXEST
- 01-2000
APARCAMIENTO EN VIGO
25-VG
Proposta d'aparcament, anteprojecte d'un estacionament soterrani a la zona de "El Corte inglés"
- C/ Gran VÃa- C/ Venezuela. VIGO
- EL CORTE INGLÉS, CONCELLO DE VIGO
- 03-2000
ESCOLA DE CONSERVACIÓ I RESTAURACIÓ DE BENS CULTURALS DE CAPUCHINAS A HUESCA
24-CCH
Projecte de Execució i Direcció d’Obra d’adaptació al programa de l’Escola Superior de Restauració i Conservació de l’Edifici Capuchinas, Rehabilitació de l’esglèssia de l’antic Convent i acondicionament dels seus espais exterior de Huesca. Coso Alto / Calle Amistad
- COSO ALTO - HUESCA, Spain
- Departament d’Educació i Ciència. Govern d’Aragó
- 3040 m²
- 2276720
- 01-1994
8 HABITATGES DE PROMOCIÓ PÚBLICA I URBANITZACIÓ ESPAIS EXTERIORS A VIDRÀ
23-VID
Concurs, projecte i direcció d’obra. Habitatges protegits régim HPO. Promoció pública
- Can BARTOLÃ, VIDRÀ - GIRONA, Spain
- INCASOL - Institut Català del Sòl
- 1801 m²
- 776000
- 05-2000
- 04-2004














